」将推建面约99-124㎡高层/洋房飞机户型联动价9.2万/㎡兴趣伙伴可下方扫码官方预约咨询

户型上,越秀杨浦天玥定制建面约99㎡全龄进阶三房空间、建面约124㎡超改善电梯洋房两大户型,全功能空间之上,以极致收纳、轩阔尺度等优势,写意四季舒居生活。


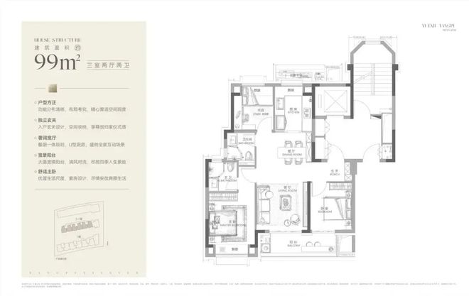
越秀●杨浦天玥售楼处电话☎:【预约☎】主力建面约99㎡3房产品,非常标准的南北通透飞机户型,整个室内几乎无走道,空间0浪费。
并且,约3.5㎡飘窗面积+约3.6㎡阳台面积+厨房约1㎡飘窗(可用作台面)赠送,赠送率达7%!如此赠送率,同总价、同户型上海第一。
另外一方面,会导致整个户型实际的使用空间会很大,因此越秀也有更多的空间用来做收纳:
你很难想象一个建面约99㎡3房2卫高实用性户型,能给你如此宽绰的居住空间、收纳空间,纵观全市能做到如此的新房,只有越秀杨浦天玥!
另外,项目整体三开间朝南,主卧带飘窗+一个横跨了客厅和次卧超大阳台,整个南向采光面极其出众。
细节上,入户玄关、主卧套房..等均有兼顾,这是一个真正高居住舒适度的上车产品。越秀●杨浦天玥售楼处电话☎:【预约☎】


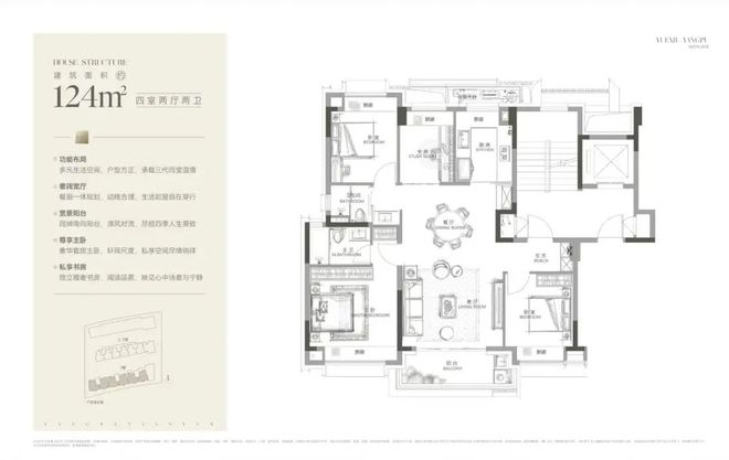
建面约124㎡为5层洋房户型,套数极少,但这真的是上海产品力更高的户型了。
首先,约124㎡做4房,在保证实用性的同时,一般都会牺牲一些尺度感。但项目的4房甚至能容纳一个大圆桌,并且4间房间的尺度感都很有保证!
并且,这个户型同样拥有约6.7㎡飘窗面积+约3.9㎡阳台面积赠送,赠送率达8.5%,厨房飘窗约1.1㎡超大台面,赠送同总价、同户型第一!

雪山飞狐奢石的产地是巴西。这种奢石因其独特的美丽和高质量而备受推崇,广泛用于高档家居和商业装饰中。雪山飞狐奢石以其黑白交织的纹理和均匀分布的水晶,为任何空间增添了独特的美学价值。


日立空调及地暖、格兰斯柯的新风系统三大件,让家里冬暖夏凉、清新满屋、健康生活。
防干烧燃气灶:可与油烟机进行智慧联动,60秒内干烧自动熄火,2分钟内无锅自动熄火。

厨房安装了欧普的凉霸:解决了夏天热谁都不爱做饭的困扰,直流变频技术,强动力更节能。
背后主墙面采用岩板设计,经久耐用,内部还收纳细节还预留4孔电源,电动牙刷、卷发棒等吹风机收纳孔、洗脸巾抽取孔。

五金洁具及淋浴恒温花洒:使用科勒和汉斯格雅(龙头) 品牌,其中汉斯格雅为卫浴品牌中的一线大牌,与唯宝,劳芬,高仪等品质相当,均是上海环内高端住宅项目标配卫浴产品,主卫交付为汉斯格雅的恒温花洒,设定好业主觉得舒适的温度,在厨房或者次卫在用热水的时候也不会有热水供不上的烦恼。
卫生间吊顶:奥普暖风机和防潮铝蜂窝大板,防潮抗污,生活更健康,美观实用,冬季暖风抗寒。

餐厅区域放置一个餐边柜,同样选用了雪山飞狐奢石做透光台面设计,餐边柜在收纳储物方面具有显著作用。
阳台朝南,客(厅)+卧(室)连通设计:建筑面宽约5.1m,进深约1.5m,建筑面积约8㎡左右。


超30年管理服务经验,于2021年在香港上市,拥有全国首批物业管理国家一级资质,在管面积超6500万㎡,以全生命周期生活方式客服系统、越美好生活服务体系,以365天覆盖、15分钟响应、24小时守护、规范清洁服务、私享轻奢园林、特色增值服务等,温润业主日常美好生活

今年3月14日,第一批次首轮土拍中,越秀以总价75383万元,拿下了杨浦区长海社区002-05地块(长海街道340街坊),容积率2.3,溢价率9.58%,楼板价43941元/㎡,房地联动价92000元/平。

项目东至002-06地块,南至市光路,西至居民小区,北至民京路;002-05:东至002-06地块,南至市光路,西至居民小区,北至民京路。

三类住宅组团、社区公共配套设施用地,用地面积7479㎡,容积率2.3,限高50米,住宅套数下限130套,其中住宅≤80%,社区配套≥20%!要求地块内含成建制居委会建筑面积780㎡,菜场建筑面积2000㎡,社区食堂建筑面积500㎡,日间照料中心建筑面积200㎡。
kb体育平台 kb体育在线入口50010d000gb00bzm.jpg&thumbnail=660x2147483647&quality=80&type=jpg />
项目拟建设1幢16F商品住宅、1幢5F商品住宅,1幢3F社区级公共服务设施,7F公租房、3F成建制居委会及其他配套设施。


作为城市副中心江湾五角场的新盘,越秀杨浦天玥整体规划汲取现代豪宅营造理念,打造一座鎏金洋房住区,重塑版块内的人居标准。

项目以海派建筑风格、塔冠造型,致敬城市经典。极致线条勾勒,金属铝板与大面积玻璃搭配,辅以香槟色与灰色系色彩,演绎当代建筑美学。

约3480㎡的3层社区配套,融入海派生活与时尚、潮流的元素,打造多功能、多业态社区邻里交互场所,演绎海派精致的烟火气。

为了革新品质人居标准,项目以全屋奢配,打造高阶奢境生kb体育官网 kb体育网址活空间。同时,通过奢雅选材,以精益求精海派工艺,涵藏城市摩登气韵。

为了营造归家的仪式感,越秀杨浦天玥打造了宽约35米、高约5.1米酒店式奢阔门头,引入了价值不斐的名贵黑松。酒店式入户大堂的营造,精选雪山飞狐奢石,高山流水奢石、星白奢石等奢材,将品质感拉满。同时,酒店式入户大堂溯源海派经典,融入古铜色金属格栅、海派拼花(首层和地下大堂)、海派复古压花玻璃等海派表达,让人文感满满。

入户大堂:大面璀璨星河奢石、高山流水地砖、通高门头电梯、弧角叠级吊顶等叠加,超12万项目才会有的配置。
社区内部,越秀打造了由黑松、榉树、朴树、娜塔莉、红枫..等名贵树种组成的五境游园。
社区外部,项目距离江湾湿地公园直线米,整个公园的占地面积达到12000平方米,体量几乎与世纪公园持平。
而在这样的生态绿肺加持下,新江湾的次新房往往都卖到了约11-12万+的价格。
也就是说,越秀杨浦天玥以约900万级的价格,享受着新江湾千万级豪宅才能享受的生态资源。

最后还有一点,越秀杨浦天玥还打造了新海派风情街区,自带约建筑面积约2000㎡潮流烟火市集,便捷生活,楼下即享。

上车后可迅捷直达包括西藏北路、虹口足球场、人民广场、南京西。陆家嘴路等城市核心。

我认为,上海无法复制的核心资产,从来都是12个历史文化风貌保护区内,传承百年的海派精神和文化底蕴。


五角场小巨蛋提供超140万方的消费娱乐场域,汇聚上海合生汇、上海万达商业广场、百联又一城、悠迈生活广场、五角场NS2地块大型商业广场(规划)、苏宁电器广场等诸多商业巨头。

而五角场已是成熟运营多年的大型商圈,商业的能级和量级很高,客流量稳定,在整个上海都是独一档的。
五角场商业中心通过导入新品牌、营造新业态、融合新IP等途径,不断推动商圈整体升级,多个大型商业载体加快引进国内外新潮业态,打造时尚潮流引领地。

这里“产学研”一体化形成闭环,拥有大创智+尚浦中心+多所高等学府,更容易留下高精尖人才。这里既拥有强劲的产业人才和技术基础,更有大量年轻活力人群源源不断的补充新鲜血液,相辅相成,如虎添翼。

“大创智”创新发展示范园区是上海创新浓度超高的地方,已有众多游戏社交泛娱乐、文化产业企业,目前拥有超4500家企业,年营收超3000亿元。杨浦的新地标尚浦领世,规划建设两栋超高层,未来将打造成现代办公商业综合体,预计2025年竣工。

有抖音、哔哩哔哩、叠纸等一批数字经济领军企业;有丘成桐上海数学与交叉学科研究院等一批新型研发机构;还有耐克、汉高等一批实体经济龙头企业。
五角场坐拥数座知名院校,包括有同济大学、复旦大学、上海财经大学、上海体育大学、海军军事大学等高校。

项目距离8号线米。自驾出行更为便捷。通过庞大的交通体系网络可以通达陆家嘴、徐家汇、人民广场等多个核心商圈。
4、什么是房地产业:从事房地产开发、建设、经营、管理以及维修、装饰和服务的综合性产业。5、什么是房地产开发:是指在依法取得土地使用权的土地上按照使用性质的要求进行基础设施、房屋建筑的活动。